
UPDATED:
Key Details
Property Type Single Family Home
Sub Type Single Family Residence
Listing Status Active
Purchase Type For Sale
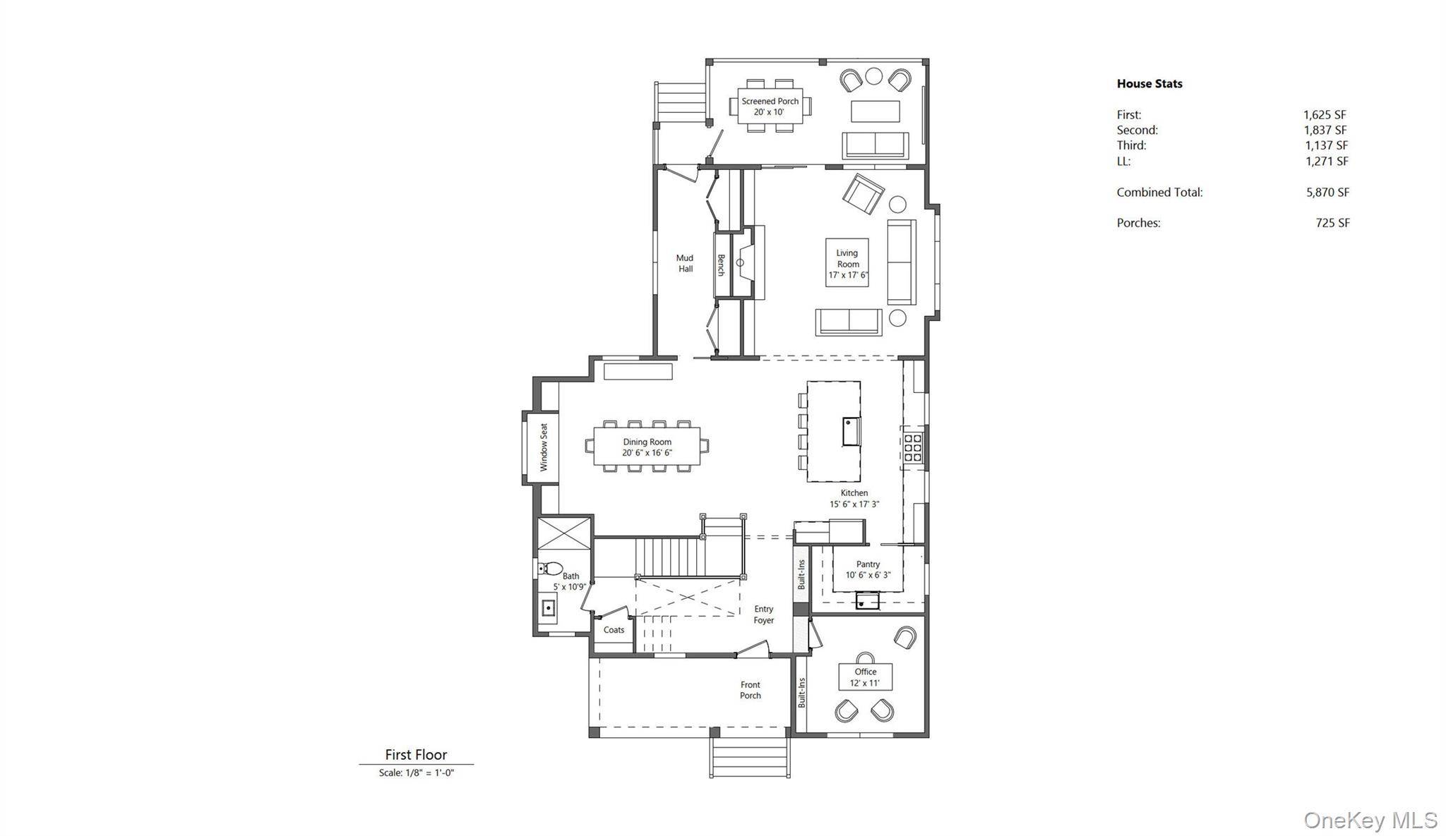
Square Footage 4,599 sqft
Price per Sqft $812
MLS Listing ID 942509
Style Other
Bedrooms 6
Full Baths 6
HOA Y/N No
Rental Info No
Year Built 2025
Lot Size 6,534 Sqft
Acres 0.15
Property Sub-Type Single Family Residence
Source onekey2
Property Description
Location
State NY
County Out Of Area
Rooms
Basement Finished, Full
Interior
Interior Features Built-in Features, Stone Counters, Wet Bar
Heating Forced Air, Natural Gas
Cooling Central Air
Flooring Carpet, Hardwood, Tile
Fireplaces Number 1
Fireplaces Type Bedroom, Living Room
Fireplace Yes
Appliance Dishwasher, Dryer, Range, Refrigerator, Washer
Laundry Electric Dryer Hookup
Exterior
Exterior Feature Other
Parking Features Driveway, Garage, Garage Door Opener
Garage Spaces 2.0
Utilities Available Cable Available
View City
Total Parking Spaces 4
Garage true
Private Pool No
Building
Lot Description Cleared, Level
Foundation Other
Sewer Public Sewer
Water Public
Structure Type Other
Schools
Elementary Schools Lake Avenue Elementary School
Middle Schools Maple Avenue Middle School
High Schools Saratoga Springs
School District Saratoga Springs
Others
Senior Community No
Special Listing Condition None
Get More Information




